貝塚市鳥羽 中古戸建

【外観】
【キッチン】
【居室・収納】
【LDK】
【バスルーム】
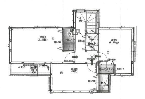
【1階間取り図】
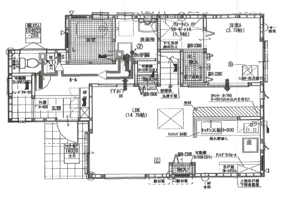
【2階間取り図】

〈物件概要〉

価格:2,790万円

住所:大阪府貝塚市鳥羽279-20

■土地

権利:所有権

面積:108.50㎡

用途地域:第一種住居地域

建蔽率/容積率:60%/200%

■建物

面積:94.00㎡(1階53.42㎡、2階40.58㎡)

構造:木造2階建

築年月:2021年4月

間取:4LDK

現況/引渡:空室/相談

取引態様:専任媒介

■その他

・カースペース有

・広々約17帖のリビング

・収納豊富!ウォークインクローゼット有。

・築浅美麗

お気軽にお問い合わせください!

ご希望に沿った物件探しはネクストプラスにお任せください。 不動産の買取りも行っておりますのでお気軽にお問い合わせください。

【TEL】06-6150-8847
【FAX】06-6150-8848

関連記事

PAGE TOP
PAGE TOP